Добро пожаловать на http://vipplan.ru

Випплан Усть-Кут - это тысячи проектов домов в нашем каталоге!

Вы всегда сможете найти для себя проект дома вашей мечты! Даже если этого не случилось, мы готовы в любую минуту предложить проект индивидуального дома.

Забыли пароль?
Вы еще не регистрировались?

Перейдите по ссылке ниже на страницу регистрации.

Регистрация...

Внимание!!!

В проектную документацию могут быть внесены изменения любой сложности, в соответствии в Вашими пожеланиями!

Полезные статьи

Фундамент под гараж

Обычно фундаменты под гараж делаются из бетонного раствора и заливаются, как монолит. Гаражные фундаменты так же можно укладывать из бетона с применением бутового камня. Такие фундаменты тоже считаются монолитными. В этом случае происходит экономия бетона....

Технология строительства быстровозводимых домов

Погода бывает разной и показывает свой характер и он не редко оказывается малоприятным. Прекрасная солнечная погода сменяется то жарой, то резким похолоданием, то проливными дождями. Когда наступает зима, вопрос утепления деревянного дома становится все актуальнее и актуальнее. Если вы планируете построить дом в конце осени, то вам нужно знать,что микроклимат который будет создаваться внутри, повлияет на сопротивляемость организма, к простуде и прочим вирусным заболеваниям. Да и в теплом уютном доме приятно проводить время, когда за окном вьюга и стужа....

Проекты домов и коттеджей > Каталог проектов домов > Двухэтажный дом с тремя спальнями, спортзалом и кабинетом Vg3385

Двухэтажный дом с тремя спальнями, спортзалом и кабинетом Vg3385

Двухэтажный дом с тремя спальнями, спортзалом и кабинетом
Зарегистрируйтесь

Проект № Vg3385


Техническое описание
Общая площадь: 268.37 м2
Жилая площадь: 100.71 м2
Высота здания: 9.55 м
Размеры дома: 23.43м×9.69м
Кол-во комнат: 5
Цокольный этаж: нет
Гараж: нет
Мансарда: нет

Kонструкция
Фундамент: монолитная плита
Перекрытия: монолитные
Материал стен: material_mon

Архитектурный раздел
Конструктивный раздел
АР+КР - 72 000 (Со скидкой 20%)
Двухэтажный дом с тремя спальнями, спортзалом и кабинетом с размерами здания 23,43 х 9,69 м. Наружная отделка здания – штукатурка, камень. Фундамент – монолитная ж/б плита под всей площадью дома с рёбрами вниз. Наружные стены – керамические блоки. Внутренние стены – керамические блоки. Перегородки – гипсолитовые блоки. Пол 1 этажа – пол по монолитной плите. Межэтажное и чердачное перекрытие – монолитная ж/б плита. Крыша плоская. Кровля – полимерно-битумный кровельный материал. Окна — металлопластиковые.
Генплан застройки участка / Паспорт проекта 7000 руб / 10000 руб
Инженерный раздел (полный) 134000 руб
Смета на строительство 67000 руб
Теплотехнический расчет материалов стен Бесплатно
Стоимость проекта со незначительнми изменениями 83300 руб
Стоимость проекта со средними изменениями* 103400 руб
Стоимость проекта со значительными изменениями** 108800 руб

План первого этажа


Оранжерея - 12,76 м2
Прихожая - 11,49 м2
С/у - 2,34 м2
Душевая - 9,09 м2
Спортзал - 18,00 м2
Гостиная - 38,61 м2
Кухня-Столовая - 26,62 м2
Кладовая - 3,28 м2
Гостевая - 7,70 м2
С/у - 3,17 м2
Бойлерная - 7,67 м2

Двухэтажный дом с тремя спальнями, спортзалом и кабинетом

Двухэтажный дом с тремя спальнями, спортзалом и кабинетом

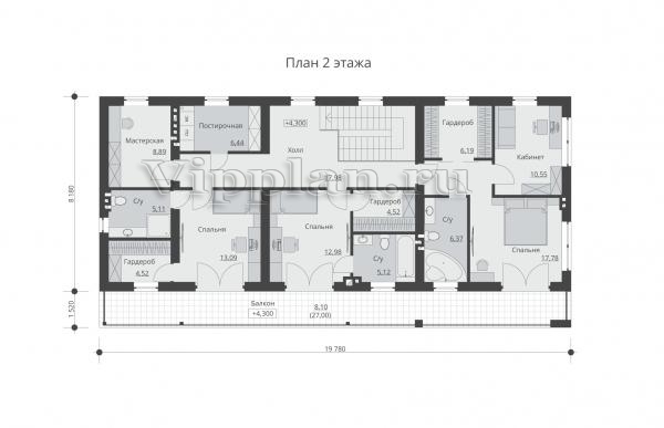
План второго этажа


Холл - 17,98 м2
Постирочная - 6,44 м2
Мастерская - 8,89 м2
С/у - 5,11 м2
Гардероб - 4,52 м2
Спальня - 13,09 м2
Спальня - 12,98 м2
С/у - 5,12 м2
Гардероб - 4,52 м2
С/у - 6,37 м2
Спальня - 17,78 м2
Балкон - 8,10 (27,00) м2
Кабинет - 10,55 м2
Гардероб - 6,19 м2
Двухэтажный дом с тремя спальнями, спортзалом и кабинетом Двухэтажный дом с тремя спальнями, спортзалом и кабинетом Двухэтажный дом с тремя спальнями, спортзалом и кабинетом Двухэтажный дом с тремя спальнями, спортзалом и кабинетом
Внесение изменений и привязка к участку строительства

В любой из проектов от компании VIPplan - Усть-Кут по вашему желанию могут быть внесены изменения в материалы стен, материалы наружной отделки дома, а также будет произведена адаптация проекта под конкретный регион строительства (с учетом грунтов региона, геологических особенностей вашего участка и местных климатических условий) - БЕСПЛАТНО !!! (кроме проектов со скидкой и проектов наших партнеров).

Любой из проектов, размещенных на сайте ust-kut.vipplan.ru мы можем выполнить из требуемых вам строительных материалов: ячеистый бетон (газобетон, пеноблок), керамоблок, кирпич, шлакоблок, бетонный блок, дерево (брус, клееный брус), каркасная технология (деревянный каркас, металлокаркас (ЛСТК)).

Фасад дома и его наружную отделку так же возможно выполнить с применением различных облицовочных материалов: структурной штукатурки, (с утеплителем и без), сайдингом (пластиковый или металлосайдинг), фиброплитами, кирпича.

 
6 Избранные
проекты

Доставка проектов по России: Москва (Московская область), Санкт-Петербург (Ленинградская область), Краснодар, Ростов-на-Дону, Ставрополь, Сочи, Волгоград, Новосибирск, Белгород, Брянск, Воронеж, Саратов, Хабаровск, Астрахань, Нальчик, Владикавказ, Екатеринбург, Тюмень, Самара, Нижний Новгород, Казань, Пермь, Уфа, Челябинск, Красноярск, Ханты-Мансийск, Иркутск, Курган, Оренбург, Омск, Томск, Барнаул, Новокузнецк, Кемерово, Абакан, Чита, Якутск, Южно-Сахалинск, Петропавловск-Камчатский и страны ближнего зарубежья: Белоруссия, Украина, Казахстан