Добро пожаловать на http://vipplan.ru

Випплан Усть-Кут - это тысячи проектов домов в нашем каталоге!

Вы всегда сможете найти для себя проект дома вашей мечты! Даже если этого не случилось, мы готовы в любую минуту предложить проект индивидуального дома.

Забыли пароль?
Вы еще не регистрировались?

Перейдите по ссылке ниже на страницу регистрации.

Регистрация...

Внимание!!!

В проектную документацию могут быть внесены изменения любой сложности, в соответствии в Вашими пожеланиями!

Полезные статьи

Дом это прекрасное вложение

Современный рынок недвижимости диктует свои правила. Цены на землю и недвижимость в Усть-Куте постоянно растут и вынуждают по-другому смотреть на покупку собственного дома. Не только со стороны получения удобного, благоустроенного жилья, но и со стороны капитализации и инвестировании своих средств...

Зачем нужен проект дома?

Зачем нужен проект? - спросите вы. Проект дома является важной и неотъемлемой частью при строительстве дома. После покупки проекта, вы получите разрешение на строительство, предоставив его в местную архитектуру, а после, с его помощью, построите дом....

Проекты домов и коттеджей > Каталог проектов домов > Проект одноэтажного жилого дома с мансардой в скандинавском стиле Vg2381

Проект одноэтажного жилого дома с мансардой в скандинавском стиле Vg2381

Проект одноэтажного жилого дома с мансардой в скандинавском стиле
Зарегистрируйтесь

Проект № Vg2381


Техническое описание
Общая площадь: 232.83 м2
Жилая площадь: 130.41 м2
Высота здания: 9.95 м
Размеры дома: 9.92м×17.72м
Кол-во комнат: 6
Цокольный этаж: нет
Гараж: нет
Мансарда: есть

Kонструкция
Фундамент: Ленточный монолитный ж/б
Перекрытия: Монолитные ж/б плиты, деревянные балки.

Архитектурный раздел
АР+КР - 64 000 (Со скидкой 20%)
Модель проекта индивидуального одноэтажного жилого дома с мансардой с размерами здания 9,92 x 17,72 м. Наружная отделка здания – обшивка деревом. Фундамент – ленточный монолитный ж/б. Наружные стены – керамические блоки, минеральная вата, обшивка доской. Внутренние стены и перегородки – керамические блоки. Пол 1 этажа - пол по монолитной ж/б плите. Чердачное перекрытие - деревянные балки. Крыша двускатная. Кровля - листовая сталь. Окна — металлопластиковые.
Генплан застройки участка / Паспорт проекта 7000 руб / 10000 руб
Инженерный раздел (полный) 116500 руб
Смета на строительство 58250 руб
Теплотехнический расчет материалов стен Бесплатно
Стоимость проекта со незначительнми изменениями 74150 руб
Стоимость проекта со средними изменениями* 91700 руб
Стоимость проекта со значительными изменениями** 96300 руб

План первого этажа


Тамбур — 5,09 кв м
Холл — 4,86 кв м
Кухня-столовая — 13,19 кв м
Гостиная — 35,12 кв м
Гостевая спальня — 9,62 кв м
Гараж — 37,71 кв м
С/у — 3,2 кв м
Бойлерная — 6,5 кв м

Проект одноэтажного жилого дома с мансардой в скандинавском стиле

Проект одноэтажного жилого дома с мансардой в скандинавском стиле

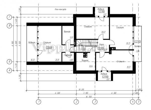
План второго этажа


Холл — 5,9 кв м
Спальня — 19,17 кв м
Спальня — 19,71 кв м
Спальня — 19,57 кв м
Спальня — 25,15 кв м
Ванная — 5,91 кв м
Гардероб — 2,85 кв м
Ванная — 8,64 кв м
Лоджия — 10,72 кв м
Лоджия — 3,31 кв м
Лоджия — 3,31 кв м
Балкон — 7,86 кв м

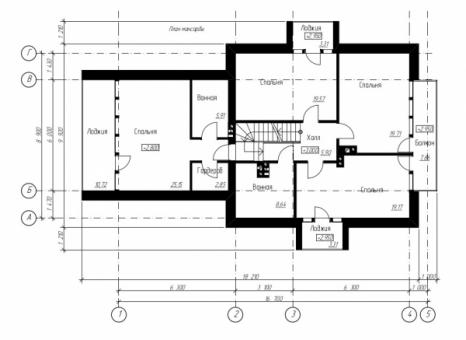
План мансардного этажа



Проект одноэтажного жилого дома с мансардой в скандинавском стиле Проект одноэтажного жилого дома с мансардой в скандинавском стиле Проект одноэтажного жилого дома с мансардой в скандинавском стиле Проект одноэтажного жилого дома с мансардой в скандинавском стиле

Модификации проектов

Внесение изменений и привязка к участку строительства

В любой из проектов от компании VIPplan - Усть-Кут по вашему желанию могут быть внесены изменения в материалы стен, материалы наружной отделки дома, а также будет произведена адаптация проекта под конкретный регион строительства (с учетом грунтов региона, геологических особенностей вашего участка и местных климатических условий) - БЕСПЛАТНО !!! (кроме проектов со скидкой и проектов наших партнеров).

Любой из проектов, размещенных на сайте ust-kut.vipplan.ru мы можем выполнить из требуемых вам строительных материалов: ячеистый бетон (газобетон, пеноблок), керамоблок, кирпич, шлакоблок, бетонный блок, дерево (брус, клееный брус), каркасная технология (деревянный каркас, металлокаркас (ЛСТК)).

Фасад дома и его наружную отделку так же возможно выполнить с применением различных облицовочных материалов: структурной штукатурки, (с утеплителем и без), сайдингом (пластиковый или металлосайдинг), фиброплитами, кирпича.

 
6 Избранные
проекты

Доставка проектов по России: Москва (Московская область), Санкт-Петербург (Ленинградская область), Краснодар, Ростов-на-Дону, Ставрополь, Сочи, Волгоград, Новосибирск, Белгород, Брянск, Воронеж, Саратов, Хабаровск, Астрахань, Нальчик, Владикавказ, Екатеринбург, Тюмень, Самара, Нижний Новгород, Казань, Пермь, Уфа, Челябинск, Красноярск, Ханты-Мансийск, Иркутск, Курган, Оренбург, Омск, Томск, Барнаул, Новокузнецк, Кемерово, Абакан, Чита, Якутск, Южно-Сахалинск, Петропавловск-Камчатский и страны ближнего зарубежья: Белоруссия, Украина, Казахстан