Добро пожаловать на http://vipplan.ru

Випплан Усть-Кут - это тысячи проектов домов в нашем каталоге!

Вы всегда сможете найти для себя проект дома вашей мечты! Даже если этого не случилось, мы готовы в любую минуту предложить проект индивидуального дома.

Забыли пароль?
Вы еще не регистрировались?

Перейдите по ссылке ниже на страницу регистрации.

Регистрация...

Внимание!!!

В проектную документацию могут быть внесены изменения любой сложности, в соответствии в Вашими пожеланиями!

Полезные статьи

Выбор участка для строительства дома

Если вы решили приобрести участок земли и построить на нем дом или дачу. То данная статья специально для вас. А так же мы поможем вам в выборе проекта для выбранного вами участка....

Монолитный коттедж с несъемной опалубкой

Перед тем, как вы задумаетесь о строительстве своего коттеджа, необходимо выбрать, сами вы будете руководить строительством, нанимать разных рабочих, или будете обращаться в строительную фирму, и заключать с ними договор. Но даже к этому вопросу нужно подходить правильно, обдумав все плюсы и минусы выбора....

Проекты домов и коттеджей > Каталог проектов домов > Проект двухэтажного дома с гаражом и витражами Vg2306

Проект двухэтажного дома с гаражом и витражами Vg2306

Проект двухэтажного дома с гаражом и витражами
Зарегистрируйтесь

Проект № Vg2306


Техническое описание
Общая площадь: 211 м2
Жилая площадь: 109.04 м2
Высота здания: 9.43 м
Размеры дома: 11.86м×15.06м
Кол-во комнат: 6
Цокольный этаж: нет
Гараж: нет
Мансарда: нет

Kонструкция
Фундамент: Монолитная ж/б плита
Перекрытия: Деревянные балки перекрытия
Материал стен: Бетонные блоки

Архитектурный раздел
Конструктивный раздел
Инженерный раздел
АР+КР - 64 000 (Со скидкой 20%)
АР+КР+ИР - 137 850 (Со скидкой 50%)
Модель проекта индивидуального двухэтажного жилого дома с размерами здания 11,86 x 15,06 м. Наружная отделка здания - сайдинг. Фундамент - монолитная ж/б плита. Наружные стены - отсевоблок. Внутренние стены - отсевоблок. Перегородки - отсевоблок и гипсокартон на металлическом каркасе. Пол первого этажа - пол по фундаментной плите. Межэтажное перекрытие - деревянные балки перекрытия. Крыша - четырехскатная. Кровля - металлочерепица. Окна - металлопластиковые. Лестница - металлическая.
Генплан застройки участка / Паспорт проекта 7000 руб / 10000 руб
Инженерный раздел (полный) 73850 руб (105500 руб)
Смета на строительство 52750 руб
Теплотехнический расчет материалов стен Бесплатно
Стоимость проекта со незначительнми изменениями 74700 руб
Стоимость проекта со средними изменениями* 90600 руб
Стоимость проекта со значительными изменениями** 94800 руб

План первого этажа


Тамбур - 5,93 кв м
Холл - 12,99 кв м
Гостиная - 30,82 кв м
Кухня - 9,28 кв м
Помещение 1 - 4,36 кв м
Душевая - 6,02 кв м
С/у - 1,80 кв м
Парилка - 2,85 кв м
Гараж - 36,02 кв м

Проект двухэтажного дома с гаражом и витражами

Проект двухэтажного дома с гаражом и витражами

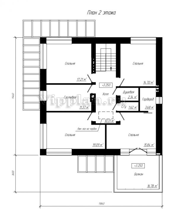
План второго этажа


Холл - 10,31 кв м
Спальня - 14,70 кв м
Душевая - 2,34 кв м
С/у - 1,62 кв м
Гардероб - 3,68 кв м
Спальня - 15,84 кв м
Балкон - 5,03* кв м
Спальня - 19,09 кв м
Гостевая - 11,37 кв м
Спальня - 17,21 кв м
Проект двухэтажного дома с гаражом и витражами Проект двухэтажного дома с гаражом и витражами Проект двухэтажного дома с гаражом и витражами Проект двухэтажного дома с гаражом и витражами

Модификации проектов

Внесение изменений и привязка к участку строительства

В любой из проектов от компании VIPplan - Усть-Кут по вашему желанию могут быть внесены изменения в материалы стен, материалы наружной отделки дома, а также будет произведена адаптация проекта под конкретный регион строительства (с учетом грунтов региона, геологических особенностей вашего участка и местных климатических условий) - БЕСПЛАТНО !!! (кроме проектов со скидкой и проектов наших партнеров).

Любой из проектов, размещенных на сайте ust-kut.vipplan.ru мы можем выполнить из требуемых вам строительных материалов: ячеистый бетон (газобетон, пеноблок), керамоблок, кирпич, шлакоблок, бетонный блок, дерево (брус, клееный брус), каркасная технология (деревянный каркас, металлокаркас (ЛСТК)).

Фасад дома и его наружную отделку так же возможно выполнить с применением различных облицовочных материалов: структурной штукатурки, (с утеплителем и без), сайдингом (пластиковый или металлосайдинг), фиброплитами, кирпича.

 
6 Избранные
проекты

Доставка проектов по России: Москва (Московская область), Санкт-Петербург (Ленинградская область), Краснодар, Ростов-на-Дону, Ставрополь, Сочи, Волгоград, Новосибирск, Белгород, Брянск, Воронеж, Саратов, Хабаровск, Астрахань, Нальчик, Владикавказ, Екатеринбург, Тюмень, Самара, Нижний Новгород, Казань, Пермь, Уфа, Челябинск, Красноярск, Ханты-Мансийск, Иркутск, Курган, Оренбург, Омск, Томск, Барнаул, Новокузнецк, Кемерово, Абакан, Чита, Якутск, Южно-Сахалинск, Петропавловск-Камчатский и страны ближнего зарубежья: Белоруссия, Украина, Казахстан