Добро пожаловать на http://vipplan.ru

Випплан Усть-Кут - это тысячи проектов домов в нашем каталоге!

Вы всегда сможете найти для себя проект дома вашей мечты! Даже если этого не случилось, мы готовы в любую минуту предложить проект индивидуального дома.

Забыли пароль?
Вы еще не регистрировались?

Перейдите по ссылке ниже на страницу регистрации.

Регистрация...

Внимание!!!

В проектную документацию могут быть внесены изменения любой сложности, в соответствии в Вашими пожеланиями!

Полезные статьи

Выбор бригады строителей в Усть-Куте

Перед началом строительства дома перед будущим хозяином загородной недвижимости в Иркутской области обозначится несколько вариантов: обратиться в строительную компанию, специализирующуюся на малоэтажном коттеджном строительстве, воспользоваться услугами частной бригады; строить самому "своими руками"....

Зачем нужен проект дома?

Зачем нужен проект? - спросите вы. Проект дома является важной и неотъемлемой частью при строительстве дома. После покупки проекта, вы получите разрешение на строительство, предоставив его в местную архитектуру, а после, с его помощью, построите дом....

Проекты домов и коттеджей > Каталог проектов домов > Проект одноэтажного дома с мансардой и подвалом Vg2218

Проект одноэтажного дома с мансардой и подвалом Vg2218

Проект одноэтажного дома с мансардой и подвалом
Зарегистрируйтесь

Проект № Vg2218


Техническое описание
Общая площадь: 218.39 м2
Жилая площадь: 95.91 м2
Высота здания: 10.2 м
Размеры дома: 11.46м×13.96м
Кол-во комнат: 5
Цокольный этаж: есть
Гараж: нет
Мансарда: есть

Kонструкция
Фундамент: Ленточный монолитный ж/б
Перекрытия: Ж/б монолитное
Материал стен: Керамоблок

Архитектурный раздел
Конструктивный раздел
Инженерный раздел
АР+КР - 64 000 (Со скидкой 20%)
АР+КР+ИР - 140 300 (Со скидкой 50%)
Проект индивидуального одноэтажного жилого дома с мансардой и подвалом с размерами здания 11,46x13,96 м. Наружная отделка здания – фасадная штукатурка. Фундамент – ленточный монолитный ж/б. Наружные стены – керамический блок "PORIKAM" с отделкой фасадной штукатуркой. Внутренние стены – кирпич рядовой. Перегородки - кирпич рядовой. Пол подвала - пол по грунту. Пол 1 этажа - сборные плиты перекрытия.Межэтажное перекрытие - ж/б монолитное. Крыша многоскатная. Кровля – металлочерепица. Окна – металлопластиковые.
Генплан застройки участка / Паспорт проекта 7000 руб / 10000 руб
Инженерный раздел (полный) 76300 руб (109000 руб)
Смета на строительство 54500 руб
Теплотехнический расчет материалов стен Бесплатно
Стоимость проекта со незначительнми изменениями 74550 руб
Стоимость проекта со средними изменениями* 90900 руб
Стоимость проекта со значительными изменениями** 95300 руб

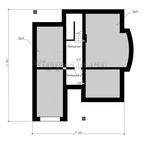
План цокольного этажа


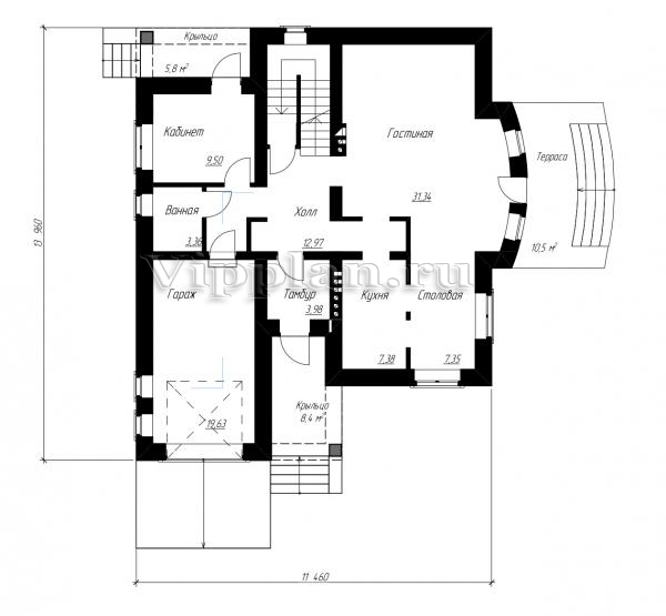
Тамбур — 3,98 м2
Холл — 12,97 м2
Гостиная — 31,34 м2
Столовая — 7,35 м2
Кухня — 7,38 м2
Кабинет — 9,5 м2
Ванная — 3,36 м2
Гараж — 19,63 м2

План первого этажа


Холл — 8,1 м2
Спальня — 17,69 м2
Спальня — 19,15 м2
Гардеробная1 — 12,70 м2
Ванная — 7,25 м2
Гардеробная2 — 12,44 м2
Спальня — 18,23 м2
Ванная — 14,2 м2

План мансардного этажа



Проект одноэтажного дома с мансардой и подвалом Проект одноэтажного дома с мансардой и подвалом Проект одноэтажного дома с мансардой и подвалом Проект одноэтажного дома с мансардой и подвалом

Модификации проектов

Внесение изменений и привязка к участку строительства

В любой из проектов от компании VIPplan - Усть-Кут по вашему желанию могут быть внесены изменения в материалы стен, материалы наружной отделки дома, а также будет произведена адаптация проекта под конкретный регион строительства (с учетом грунтов региона, геологических особенностей вашего участка и местных климатических условий) - БЕСПЛАТНО !!! (кроме проектов со скидкой и проектов наших партнеров).

Любой из проектов, размещенных на сайте ust-kut.vipplan.ru мы можем выполнить из требуемых вам строительных материалов: ячеистый бетон (газобетон, пеноблок), керамоблок, кирпич, шлакоблок, бетонный блок, дерево (брус, клееный брус), каркасная технология (деревянный каркас, металлокаркас (ЛСТК)).

Фасад дома и его наружную отделку так же возможно выполнить с применением различных облицовочных материалов: структурной штукатурки, (с утеплителем и без), сайдингом (пластиковый или металлосайдинг), фиброплитами, кирпича.

 
6 Избранные
проекты

Доставка проектов по России: Москва (Московская область), Санкт-Петербург (Ленинградская область), Краснодар, Ростов-на-Дону, Ставрополь, Сочи, Волгоград, Новосибирск, Белгород, Брянск, Воронеж, Саратов, Хабаровск, Астрахань, Нальчик, Владикавказ, Екатеринбург, Тюмень, Самара, Нижний Новгород, Казань, Пермь, Уфа, Челябинск, Красноярск, Ханты-Мансийск, Иркутск, Курган, Оренбург, Омск, Томск, Барнаул, Новокузнецк, Кемерово, Абакан, Чита, Якутск, Южно-Сахалинск, Петропавловск-Камчатский и страны ближнего зарубежья: Белоруссия, Украина, Казахстан