Добро пожаловать на http://vipplan.ru

Випплан Усть-Кут - это тысячи проектов домов в нашем каталоге!

Вы всегда сможете найти для себя проект дома вашей мечты! Даже если этого не случилось, мы готовы в любую минуту предложить проект индивидуального дома.

Забыли пароль?
Вы еще не регистрировались?

Перейдите по ссылке ниже на страницу регистрации.

Регистрация...

Внимание!!!

В проектную документацию могут быть внесены изменения любой сложности, в соответствии в Вашими пожеланиями!

Полезные статьи

Как сделать мансардную крышу

Мансарда - обеспечивает дополнительную жилую площадь одно- или двухуровневой постройке за счет подкровельного пространства и, благодаря видимым элементам конструкции крыши, выполняет немаловажную эстетическую функцию. Дома с мансардой достаточно распространены в Иркутской области благодаря своей привлекательности и неповторимости. ...

Типы и разновидности кровли

Кровля состоит из сплошного настила, стяжки и обрешетки, поддерживающих стропила и несколько слоев изоляции, призванных уберечь кровельное пространство от негативного воздействия пара и влаги....

Проекты домов и коттеджей > Каталог проектов домов > Двухэтажный дом из керамзитобетона Vg1357

Двухэтажный дом из керамзитобетона Vg1357

Двухэтажный дом из керамзитобетона
Зарегистрируйтесь

Проект № Vg1357


Техническое описание
Общая площадь: 157.28 м2
Жилая площадь: 77.06 м2
Высота здания: 9.15 м
Размеры дома: 18.28м×12.14м
Кол-во комнат: 5
Цокольный этаж: нет
Гараж: нет
Мансарда: нет

Kонструкция
Фундамент: Свайно-ростверковый
Перекрытия: Деревянные балки
Материал стен: Бетонные блоки

Архитектурный раздел
Конструктивный раздел
Инженерный раздел
АР+КР - 56 000 (Со скидкой 20%)
АР+КР+ИР - 110 950 (Со скидкой 50%)
Проект индивидуального двухтажного жилого дома с размерами здания 18,28 x 12,14 м. Наружная отделка здания – облицовочный кирпич. Фундамент – свайно — ростверковый. Наружные стены – керамзитобетонные блоки, экструдированный пенополистирол , воздушный зазор, облицовочный кирпич. Внутренние стены - керамзитобетонные блоки Перегородки – керамзитобетонные блоки на 1 этаже, на 2 этаже — ГКЛ на металлическом каркасе. Пол первого этажа - пол по грунту. Межэтажное и чердачное перекрытие - деревянные балки. Крыша – металлочерепица. Кровля – многоскатая. Окна - металлопластиковые, выполненные по индивидуальному заказу.
Генплан застройки участка / Паспорт проекта 7000 руб / 10000 руб
Инженерный раздел (полный) 54950 руб (78500 руб)
Смета на строительство 39250 руб
Теплотехнический расчет материалов стен Бесплатно
Стоимость проекта со незначительнми изменениями 66050 руб
Стоимость проекта со средними изменениями* 77900 руб
Стоимость проекта со значительными изменениями** 81000 руб

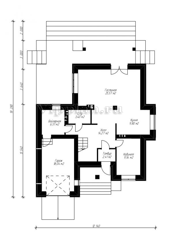
План первого этажа


Тамбур — 2,41 кв м
Холл — 14,27 кв м
Гостиная — 25,57 кв м
Кухня — 9,80 кв м
С/у — 3,40 кв м
Бойлерная — 6,51 кв м
Гараж — 18,04 кв м
Кабинет — 9,54 кв м

Двухэтажный дом из керамзитобетона

Двухэтажный дом из керамзитобетона

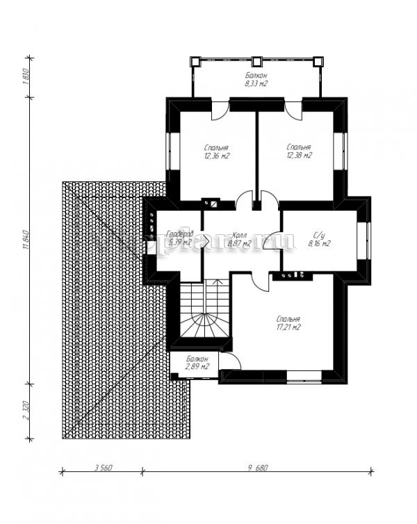
План второго этажа


Холл — 8,87 кв м
Спальня — 12,36 кв м
Спальня — 12,38 кв м
Гардероб — 5,39 кв м
С/у — 8,16 кв м
Спальня — 17,21 кв м
Балкон — 2,89 кв м
Балкон — 8,33 кв м
Двухэтажный дом из керамзитобетона Двухэтажный дом из керамзитобетона Двухэтажный дом из керамзитобетона Двухэтажный дом из керамзитобетона

Модификации проектов

Внесение изменений и привязка к участку строительства

В любой из проектов от компании VIPplan - Усть-Кут по вашему желанию могут быть внесены изменения в материалы стен, материалы наружной отделки дома, а также будет произведена адаптация проекта под конкретный регион строительства (с учетом грунтов региона, геологических особенностей вашего участка и местных климатических условий) - БЕСПЛАТНО !!! (кроме проектов со скидкой и проектов наших партнеров).

Любой из проектов, размещенных на сайте ust-kut.vipplan.ru мы можем выполнить из требуемых вам строительных материалов: ячеистый бетон (газобетон, пеноблок), керамоблок, кирпич, шлакоблок, бетонный блок, дерево (брус, клееный брус), каркасная технология (деревянный каркас, металлокаркас (ЛСТК)).

Фасад дома и его наружную отделку так же возможно выполнить с применением различных облицовочных материалов: структурной штукатурки, (с утеплителем и без), сайдингом (пластиковый или металлосайдинг), фиброплитами, кирпича.

 
6 Избранные
проекты

Доставка проектов по России: Москва (Московская область), Санкт-Петербург (Ленинградская область), Краснодар, Ростов-на-Дону, Ставрополь, Сочи, Волгоград, Новосибирск, Белгород, Брянск, Воронеж, Саратов, Хабаровск, Астрахань, Нальчик, Владикавказ, Екатеринбург, Тюмень, Самара, Нижний Новгород, Казань, Пермь, Уфа, Челябинск, Красноярск, Ханты-Мансийск, Иркутск, Курган, Оренбург, Омск, Томск, Барнаул, Новокузнецк, Кемерово, Абакан, Чита, Якутск, Южно-Сахалинск, Петропавловск-Камчатский и страны ближнего зарубежья: Белоруссия, Украина, Казахстан