Добро пожаловать на http://vipplan.ru

Випплан Усть-Кут - это тысячи проектов домов в нашем каталоге!

Вы всегда сможете найти для себя проект дома вашей мечты! Даже если этого не случилось, мы готовы в любую минуту предложить проект индивидуального дома.

Забыли пароль?
Вы еще не регистрировались?

Перейдите по ссылке ниже на страницу регистрации.

Регистрация...

Внимание!!!

В проектную документацию могут быть внесены изменения любой сложности, в соответствии в Вашими пожеланиями!

Полезные статьи

Выбор проекта дома в Усть-Куте

Выбор проекта дома может завести семью в тупик. Прийти к одному конкретному мнению всем членам семьи очень сложно. Кому-то по душе, чтобы дом был большой и одноэтажный, с красивой террасой или верандой, кому-то хочется жить в двухэтажном доме с балконом. Детям, в основном, нравятся дома с мансардой....

Печи и камины в частном доме

Спросите любого человека, и вы поймете, что каждый человек мечтает иметь свой собственный дом, который он сможет обустроить так, как ему хочется. Этот дом будет полон уюта, тепла, света и комфорта, а главное, что, придя с работы, человек сможет запросто отдохнуть у своего очага.  Нет никакой альтернативы перед выбором печи или камина. Эти две вещи не сможет  заменить ни искусственный свет, ни солнечное освещение. Камин и печь, с древности, считаются предметом роскоши. Ни один большой дом не может обойтись без них, поскольку если удастся сесть и посидеть перед этим местом, то долго нельзя будет...

Проекты домов и коттеджей > Каталог проектов домов > Проект удобного современного коттеджа Vg1173

Проект удобного современного коттеджа Vg1173

Проект удобного современного коттеджа
Зарегистрируйтесь

Проект № Vg1173


Техническое описание
Общая площадь: 237.38 м2
Жилая площадь: 96.91 м2
Высота здания: 9.25 м
Размеры дома: 13.64м×16.84м
Кол-во комнат: 5
Цокольный этаж: нет
Гараж: нет
Мансарда: нет

Kонструкция
Фундамент: Монолитный ж/б
Перекрытия: Сборные плиты
Материал стен: Газобетон

Архитектурный раздел
Конструктивный раздел
АР+КР - 64 000 (Со скидкой 20%)
Проект индивидуального двухэтажного жилого дома с размерами 13.64 x 16.84 м. Наружная отделка здания – сайдинг. Отделка цоколя – сайдинг. Фундамент – монолитный ж/б (ленточный под несущими стенами). Наружные стены запроектированы из газобетонных блоков и утеплителя с отделкой сайдингом. Внутренние стены – из забутовочного кирпича. Перегородки – из газобетонных блоков. Пол 1-го этажа – пол по грунту. Перекрытия межэтажное — сборные плиты перекрытия. Перекрытие чердачное – по деревянным балкам с использованием теплошумоизоляционных материалов. Крыша - двускатная. Материал кровли – композитная черепица. Окна - металлопластиковые, выполненные по индивидуальному заказу.
Генплан застройки участка / Паспорт проекта 7000 руб / 10000 руб
Инженерный раздел (полный) 118500 руб
Смета на строительство 59250 руб
Теплотехнический расчет материалов стен Бесплатно
Стоимость проекта со незначительнми изменениями 74050 руб
Стоимость проекта со средними изменениями* 91900 руб
Стоимость проекта со значительными изменениями** 96600 руб

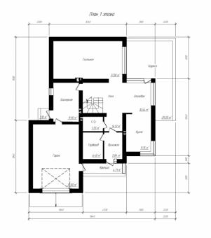
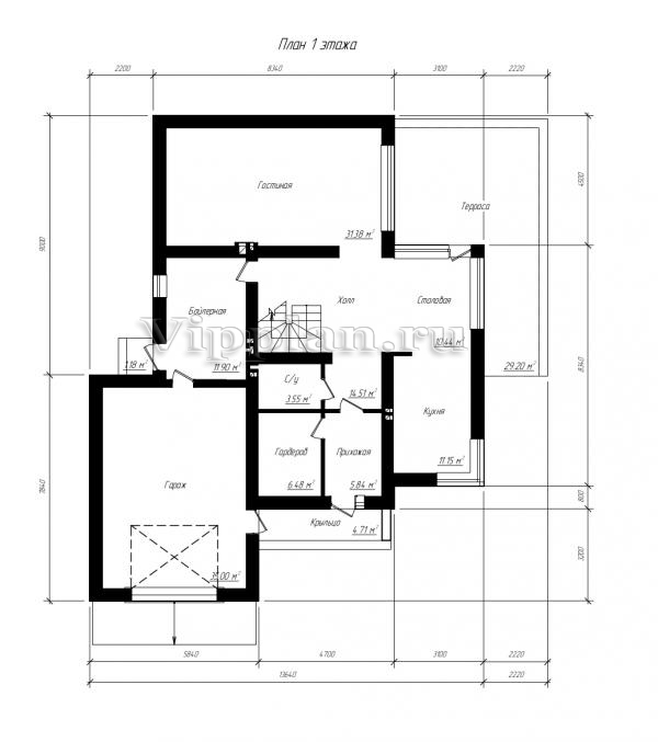
План первого этажа


Прихожая — 5,84 м2
Холл — 14,51 м2
Гостиная — 31,38 м2
Столовая — 10,44 м2
Кухня — 11,15 м2
С/у — 3,55 м2
Бойлерная — 11,90 м2
Гараж — 35 м2

Проект удобного современного коттеджа

Проект удобного современного коттеджа

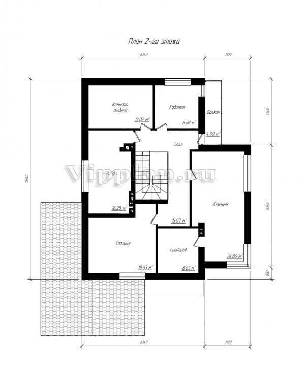
План второго этажа


Холл — 15,07 м2
Спальня — 24,80 м2
Гардероб — 8,65 м2
Спальня — 18,83 м2
С/у — 16,28 м2
Комната — 13,02 м2
Кабинет — 8,88 м2
Проект удобного современного коттеджа Проект удобного современного коттеджа Проект удобного современного коттеджа Проект удобного современного коттеджа

Модификации проектов

Внесение изменений и привязка к участку строительства

В любой из проектов от компании VIPplan - Усть-Кут по вашему желанию могут быть внесены изменения в материалы стен, материалы наружной отделки дома, а также будет произведена адаптация проекта под конкретный регион строительства (с учетом грунтов региона, геологических особенностей вашего участка и местных климатических условий) - БЕСПЛАТНО !!! (кроме проектов со скидкой и проектов наших партнеров).

Любой из проектов, размещенных на сайте ust-kut.vipplan.ru мы можем выполнить из требуемых вам строительных материалов: ячеистый бетон (газобетон, пеноблок), керамоблок, кирпич, шлакоблок, бетонный блок, дерево (брус, клееный брус), каркасная технология (деревянный каркас, металлокаркас (ЛСТК)).

Фасад дома и его наружную отделку так же возможно выполнить с применением различных облицовочных материалов: структурной штукатурки, (с утеплителем и без), сайдингом (пластиковый или металлосайдинг), фиброплитами, кирпича.

 
6 Избранные
проекты

Доставка проектов по России: Москва (Московская область), Санкт-Петербург (Ленинградская область), Краснодар, Ростов-на-Дону, Ставрополь, Сочи, Волгоград, Новосибирск, Белгород, Брянск, Воронеж, Саратов, Хабаровск, Астрахань, Нальчик, Владикавказ, Екатеринбург, Тюмень, Самара, Нижний Новгород, Казань, Пермь, Уфа, Челябинск, Красноярск, Ханты-Мансийск, Иркутск, Курган, Оренбург, Омск, Томск, Барнаул, Новокузнецк, Кемерово, Абакан, Чита, Якутск, Южно-Сахалинск, Петропавловск-Камчатский и страны ближнего зарубежья: Белоруссия, Украина, Казахстан