Добро пожаловать на http://vipplan.ru

Випплан Усть-Кут - это тысячи проектов домов в нашем каталоге!

Вы всегда сможете найти для себя проект дома вашей мечты! Даже если этого не случилось, мы готовы в любую минуту предложить проект индивидуального дома.

Забыли пароль?
Вы еще не регистрировались?

Перейдите по ссылке ниже на страницу регистрации.

Регистрация...

Внимание!!!

В проектную документацию могут быть внесены изменения любой сложности, в соответствии в Вашими пожеланиями!

Полезные статьи

Окна в доме

От хорошего стеклопакета зависит почти 50% теплостойкости всего дома. Ведь на проемы в окнах приходится до 45% тепловых потерь дома. Поэтому хорошие стеклопакеты не пропускают тепло из комнаты и должны противостоять проникновению ветра, влаги и холода с наружной стороны....

Типы и разновидности кровли

Кровля состоит из сплошного настила, стяжки и обрешетки, поддерживающих стропила и несколько слоев изоляции, призванных уберечь кровельное пространство от негативного воздействия пара и влаги....

Проекты домов и коттеджей > Каталог проектов домов > Проект одноэтажного дома с мансардой и гаражом Vg1154

Проект одноэтажного дома с мансардой и гаражом Vg1154

Проект одноэтажного дома с мансардой и гаражом
Зарегистрируйтесь

Проект № Vg1154


Техническое описание
Общая площадь: 166.7 м2
Жилая площадь: 59.57 м2
Высота здания: 7.74 м
Размеры дома: 12.16м×9.16м
Кол-во комнат: 4
Цокольный этаж: нет
Гараж: нет
Мансарда: есть

Kонструкция
Фундамент: Ленточный
Перекрытия: Деревянные балки
Материал стен: Кирпич

Архитектурный раздел
Конструктивный раздел
АР+КР - 56 000 (Со скидкой 20%)
Проект индивидуального одноэтажного жилого дома с размерами здания 12,16 x 9,16 м. Наружная отделка здания – фиброцементные плиты 2х цветов. Фундамент – ленточный, монолитный ж/б. Наружные стены – кирпич рядовой, утепление каменной базальтовой ватой, вент.зазор, отделка фасада фиброцементными плитами на каркасе. Внутренние стены — кирпич рядовой. Перегородки - ГКЛВ на металлическом каркасе. Пол 1этажа и межэтажное перекрытие - по деревянным балкам с использованием теплошумоизоляционных материалов в межбалочном пространстве. Пол первого этажа в Гараже и Кладовой - пол по грунту. Крыша двускатная. Кровля – металлочерепица. Окна — металлопластиковые
Генплан застройки участка / Паспорт проекта 7000 руб / 10000 руб
Инженерный раздел (полный) 83500 руб
Смета на строительство 41750 руб
Теплотехнический расчет материалов стен Бесплатно
Стоимость проекта со незначительнми изменениями 65800 руб
Стоимость проекта со средними изменениями* 78400 руб
Стоимость проекта со значительными изменениями** 81700 руб

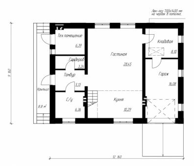
План первого этажа


Тамбур — 5,13 м2
Подсобка — 6,39 м2
Гардероб — 3,24 м2
С/у — 6,36 м2
Гостиная — 28,45 м2
Кухня — 10,29 м2
Кладовая — 8,10 м2
Гараж — 16,08 м2

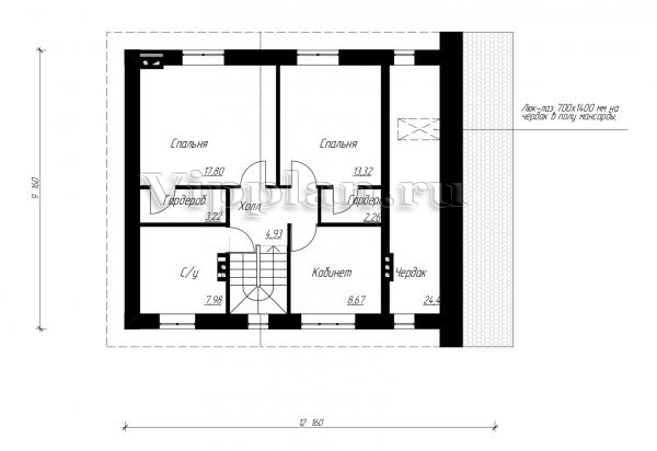
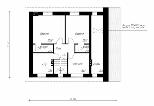
План мансардного этажа


Холл — 4,93 м2
Спальня — 17,80 м2
Гардероб — 3,22 м2
Спальня — 13,32 м2
Гардероб — 2,26 м2
Кабинет — 8,67 м2
С/у — 7,98 м2
Чердак — 24,4 м2
Проект одноэтажного дома с мансардой и гаражом Проект одноэтажного дома с мансардой и гаражом Проект одноэтажного дома с мансардой и гаражом Проект одноэтажного дома с мансардой и гаражом
Внесение изменений и привязка к участку строительства

В любой из проектов от компании VIPplan - Усть-Кут по вашему желанию могут быть внесены изменения в материалы стен, материалы наружной отделки дома, а также будет произведена адаптация проекта под конкретный регион строительства (с учетом грунтов региона, геологических особенностей вашего участка и местных климатических условий) - БЕСПЛАТНО !!! (кроме проектов со скидкой и проектов наших партнеров).

Любой из проектов, размещенных на сайте ust-kut.vipplan.ru мы можем выполнить из требуемых вам строительных материалов: ячеистый бетон (газобетон, пеноблок), керамоблок, кирпич, шлакоблок, бетонный блок, дерево (брус, клееный брус), каркасная технология (деревянный каркас, металлокаркас (ЛСТК)).

Фасад дома и его наружную отделку так же возможно выполнить с применением различных облицовочных материалов: структурной штукатурки, (с утеплителем и без), сайдингом (пластиковый или металлосайдинг), фиброплитами, кирпича.

 
6 Избранные
проекты

Доставка проектов по России: Москва (Московская область), Санкт-Петербург (Ленинградская область), Краснодар, Ростов-на-Дону, Ставрополь, Сочи, Волгоград, Новосибирск, Белгород, Брянск, Воронеж, Саратов, Хабаровск, Астрахань, Нальчик, Владикавказ, Екатеринбург, Тюмень, Самара, Нижний Новгород, Казань, Пермь, Уфа, Челябинск, Красноярск, Ханты-Мансийск, Иркутск, Курган, Оренбург, Омск, Томск, Барнаул, Новокузнецк, Кемерово, Абакан, Чита, Якутск, Южно-Сахалинск, Петропавловск-Камчатский и страны ближнего зарубежья: Белоруссия, Украина, Казахстан