Добро пожаловать на http://vipplan.ru

Випплан Усть-Кут - это тысячи проектов домов в нашем каталоге!

Вы всегда сможете найти для себя проект дома вашей мечты! Даже если этого не случилось, мы готовы в любую минуту предложить проект индивидуального дома.

Забыли пароль?
Вы еще не регистрировались?

Перейдите по ссылке ниже на страницу регистрации.

Регистрация...

Внимание!!!

В проектную документацию могут быть внесены изменения любой сложности, в соответствии в Вашими пожеланиями!

Полезные статьи

Типы и разновидности кровли

Кровля состоит из сплошного настила, стяжки и обрешетки, поддерживающих стропила и несколько слоев изоляции, призванных уберечь кровельное пространство от негативного воздействия пара и влаги....

Выбор участка для строительства дома

Если вы решили приобрести участок земли и построить на нем дом или дачу. То данная статья специально для вас. А так же мы поможем вам в выборе проекта для выбранного вами участка....

Проекты домов и коттеджей > Каталог проектов домов > Проект одноэтажного дома с мансардой и гаражом Vg1126

Проект одноэтажного дома с мансардой и гаражом Vg1126

Проект одноэтажного дома с мансардой и гаражом
Зарегистрируйтесь

Проект № Vg1126


Техническое описание
Общая площадь: 233.53 м2
Жилая площадь: 105.75 м2
Высота здания: 9.27 м
Размеры дома: 14.4м×13м
Кол-во комнат: 5
Цокольный этаж: нет
Гараж: нет
Мансарда: есть

Kонструкция
Фундамент: Ленточный
Перекрытия: Монолитное ж/б
Материал стен: Кирпич

Архитектурный раздел
Конструктивный раздел
АР+КР - 64 000 (Со скидкой 20%)
Проект индивидуального одноэтажного жилого дома с размерами здания 14,40 x 13,00 м. Наружная отделка здания –фасадная штукатурка/отделка камнем. Фундамент – ленточный, монолитный ж/б. Наружные стены – из рядового кирпича, утеплителя — минеральной ваты с отделкой фасадной штукатуркой/ камнем. Внутренние стены и перегородки - из рядового кирпича. Пол первого этажа - пол по грунту. Межэтажное перекрытие - ж/б монолитное. Крыша многоскатная. Кровля – металлочерепица. Окна — металлопластиковые
Генплан застройки участка / Паспорт проекта 7000 руб / 10000 руб
Инженерный раздел (полный) 117000 руб
Смета на строительство 58500 руб
Теплотехнический расчет материалов стен Бесплатно
Стоимость проекта со незначительнми изменениями 74150 руб
Стоимость проекта со средними изменениями* 91700 руб
Стоимость проекта со значительными изменениями** 96400 руб

План первого этажа


Тамбур — 4,36 м2
Гостевая — 10,85 м2
Холл — 10,34 м2
С/у — 2,63 м2
Помещение — 4,68 м2
Гостиная — 27,66 м2
Столовая — 11,21 м2
Кухня — 10,58 м2
Кладовая — 2,40 м2
Гараж — 24,12 м2

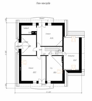
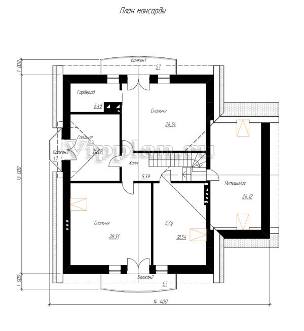
План мансардного этажа


Холл — 5,39 м2
Спальня — 24,54 м2
Гардероб — 5,48 м2
Спальня — 14,49 м2
Спальня — 28,51 м2
С/у — 18,54 м2
Помещение — 24,12 м2
Проект одноэтажного дома с мансардой и гаражом Проект одноэтажного дома с мансардой и гаражом Проект одноэтажного дома с мансардой и гаражом Проект одноэтажного дома с мансардой и гаражом

Модификации проектов

Внесение изменений и привязка к участку строительства

В любой из проектов от компании VIPplan - Усть-Кут по вашему желанию могут быть внесены изменения в материалы стен, материалы наружной отделки дома, а также будет произведена адаптация проекта под конкретный регион строительства (с учетом грунтов региона, геологических особенностей вашего участка и местных климатических условий) - БЕСПЛАТНО !!! (кроме проектов со скидкой и проектов наших партнеров).

Любой из проектов, размещенных на сайте ust-kut.vipplan.ru мы можем выполнить из требуемых вам строительных материалов: ячеистый бетон (газобетон, пеноблок), керамоблок, кирпич, шлакоблок, бетонный блок, дерево (брус, клееный брус), каркасная технология (деревянный каркас, металлокаркас (ЛСТК)).

Фасад дома и его наружную отделку так же возможно выполнить с применением различных облицовочных материалов: структурной штукатурки, (с утеплителем и без), сайдингом (пластиковый или металлосайдинг), фиброплитами, кирпича.

 
6 Избранные
проекты

Доставка проектов по России: Москва (Московская область), Санкт-Петербург (Ленинградская область), Краснодар, Ростов-на-Дону, Ставрополь, Сочи, Волгоград, Новосибирск, Белгород, Брянск, Воронеж, Саратов, Хабаровск, Астрахань, Нальчик, Владикавказ, Екатеринбург, Тюмень, Самара, Нижний Новгород, Казань, Пермь, Уфа, Челябинск, Красноярск, Ханты-Мансийск, Иркутск, Курган, Оренбург, Омск, Томск, Барнаул, Новокузнецк, Кемерово, Абакан, Чита, Якутск, Южно-Сахалинск, Петропавловск-Камчатский и страны ближнего зарубежья: Белоруссия, Украина, Казахстан